. : creating moments : .

MILAN DESIGN

DESIGN STUDIO & ARCHITECKTURA

WhatWeDo | unique designs and solutions for residential, commercial, industrial & outdoor environments.

HowWeDoIt | concierge type catering with a Supercustom experience from Design > Process > Execution.

949 243 0235

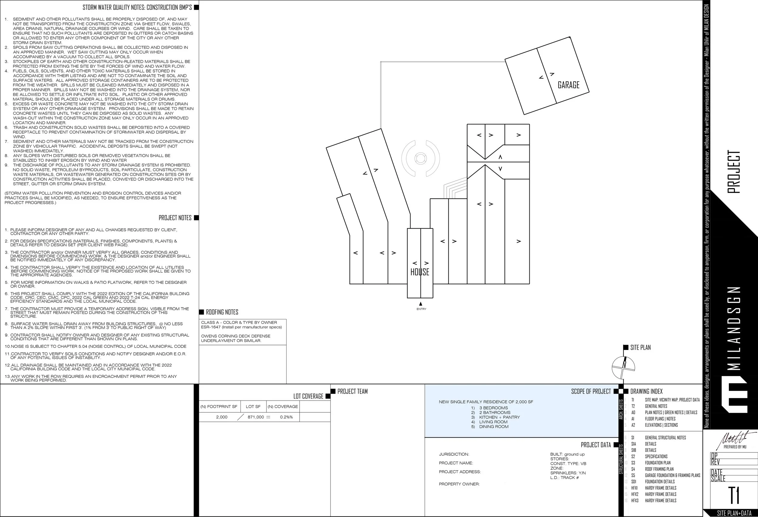
.01 Research & Planning

The project begins with obtaining documents & plans from your city’s building department.

The existing plans & measurements are essential for determining what design choices can be made that will reach your goals & budget.

.02 Preliminary Design

The preliminary design (PD) phase is where the most important foundational work is done. We utilize all the planning and research to begin drafting a uniquely custom space that meets your desires & needs.

  • PD is the foundation of your space where we establish the layout, structure and space to fit your needs.

  • Visual images (3D, 2D, etc.) are kept minimal as we are establishing & developing the main design.

  • It is crucially important to communicate with us and give us your honest feedback & concerns on any designs we showcase & discuss with you.

We start with simple renders of the preliminary design to get the overall shape and feel of the space to make sure we are on the right track.

.03 Design Development

The design development (DD) phase is where the most important foundational work is done. We utilize all the planning and research to begin drafting a uniquely custom space that meets your desires & needs.

  • PD is the foundation of your space where we establish the layout, structure and space to fit your needs.

  • Visual images (3D, 2D, etc.) are kept minimal as we are establishing & developing the main design.

  • It is crucially important to communicate with us and give us your honest feedback & concerns on any designs we showcase & discuss with you.

Further development with materials & utilizing 3D/technology to immersive you into the space for a better look and feeling of the space & design.

.04 Plans & Permits

The permit set (PS) phase is where the most important foundational work is done. We utilize all the planning and research to begin drafting a uniquely custom space that meets your desires & needs.

  • PD is the foundation of your space where we establish the layout, structure and space to fit your needs.

  • Visual images (3D, 2D, etc.) are kept minimal as we are establishing & developing the main design.

  • It is crucially important to communicate with us and give us your honest feedback & concerns on any designs we showcase & discuss with you.

All of the necessary permits, plans, engineering, docs, etc. that will be required from your Building Department to proceed to construction.

.05 Construction

The construction phase is where the most important foundational work is done. We utilize all the planning and research to begin drafting a uniquely custom space that meets your desires & needs.

  • PD is the foundation of your space where we establish the layout, structure and space to fit your needs.

  • Visual images (3D, 2D, etc.) are kept minimal as we are establishing & developing the main design.

  • It is crucially important to communicate with us and give us your honest feedback & concerns on any designs we showcase & discuss with you.

We aren’t done yet, we still help with ensuring whichever contractor you choose executes your design precisely.

.06 Final Notes

Final notes: important foundational work is done. We utilize all the planning and research to begin drafting a uniquely custom space that meets your desires & needs.

  • PD is the foundation of your space where we establish the layout, structure and space to fit your needs.

  • Visual images (3D, 2D, etc.) are kept minimal as we are establishing & developing the main design.

  • It is crucially important to communicate with us and give us your honest feedback & concerns on any designs we showcase & discuss with you.

ORANGE COUNTY, CALIFORNIA


CREATING MOMENTS, EVERYWHERE

(949) 243-0234


CREATE@MILANDSGN.COM

All materials, including written & images, are property of Milan Design. All rights reserved. No parts of this website may be reproduced or used in any manner without written permission of the copyright owner.